Retour

Maison à Noiseux

Demander une visite
Informations générales

Prix : 618 000 €

Revenu cadastral : 1181 €

Chambre(s) : 6

Salle(s) de bain : 4

Adresse : Rue de Larmont 18, Noiseux

Superficie totale : 237 m²

Superficie terrain : 3454 m²

Année de construction : 2019

Description du bien

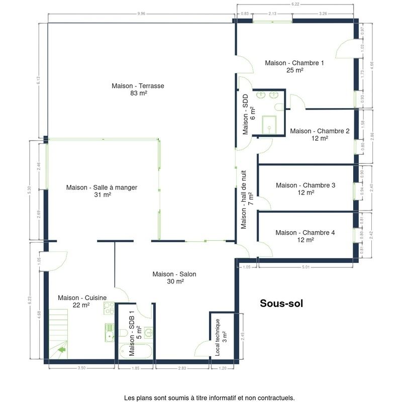
MCA Immobilier vous propose à la vente cet ensemble immobilier comprenant une maison et un appartement 1 chambre adapté pour les PMR, situé à Noiseux et bénéficiant d'une vue dominante sur un terrain de 3.454m². La maison se compose comme suit : au rez-de-jardin, vous trouverez un salon, une salle à manger, une cuisine, un local technique, une salle de bain et un hall de nuit desservant 4 chambres et une salle de douche. Au rez-de-chaussée, une cinquième chambre et une salle de bain viennent compléter les espaces de nuit. L'appartement est situé au rez-de-chaussée et se compose d'un séjour avec cuisine, d'une chambre et d'une salle de douche. Les deux biens profitent de leurs terrasses avec jardins. Panneaux photovoltaïques. Excellente performance énergétique : PEB B! Ne manquez pas cette opportunité ! 📩 Contactez-nous dès maintenant pour plus d’informations ou pour organiser une visite : info@immomca.be | ☎ 086/32.36.76

Informations financières

Prix : 618 000 €

Revenu cadastral : 1 181 €

Droits d'enregistrement : 18 540 €

Honoraires notaire : 2 659 €

Honoraires notaire TVAC : 3 217 €

Total des frais : 21 757 €

Prix total : 639 757 €

Estimation des frais à titre informatif et sans engagement. Merci de prendre contact avec votre notaire afin d’obtenir le décompte précis.

Certificat énergétique

PEB No. : 20241211021841

Performances énergétiques : 104 kWh/m².an

Mentions légales

Droit de préemption possible : Pas applicable

Permis de bâtir obtenu : Oui

Citation pour infraction urbanistique : Pas applicable

Autorisation de lotissement : Oui

Affectation : Zone d'habitat

Confort/Equipements

Chauffage: Pompe à chaleur

Orientation façade arrière: Sud-est

Type de toit: Non communiqué

Couverture du toit: Tuiles

Raccordement à l’eau: Oui

Cuisine: Non communiqué

Vitrage: Double

Chassis: pvc

Confort extérieur : Panneaux Solaires

Demander une visite
Informations générales

Prix : 618 000 €

Revenu cadastral : 1181 €

Chambre(s) : 6

Salle(s) de bain : 4

Adresse : Rue de Larmont 18, Noiseux

Superficie totale : 237 m²

Superficie terrain : 3454 m²

Année de construction : 2019

Afficher sur la carte
Calculez vos frais à l'avance!
Accéder à notaire.be

L'instance de contrôle: Institut Professionnel des Agents Immobiliers (IPI) / IPI n° 503725 (Belgique), Agent immobilier agréé - Xavier BACLENE / IPI n° 508449 (Belgique), Agent immobilier agréé - Bram VANDENBOSSCHE / IPI n° 508605 (Belgique), Agent immobilier agréé - Jean-Yves THIRION / RC professionnelle AXA Belgium S.A. 730.390.160 / Immo Chalets d'Ardennes: n° entreprise 0876.913.553 - TVA BE 0876.913.553 / Gaty Gaspar: n° entreprise 0466.099.747 - TVA BE 0466.099.747