Description du bien
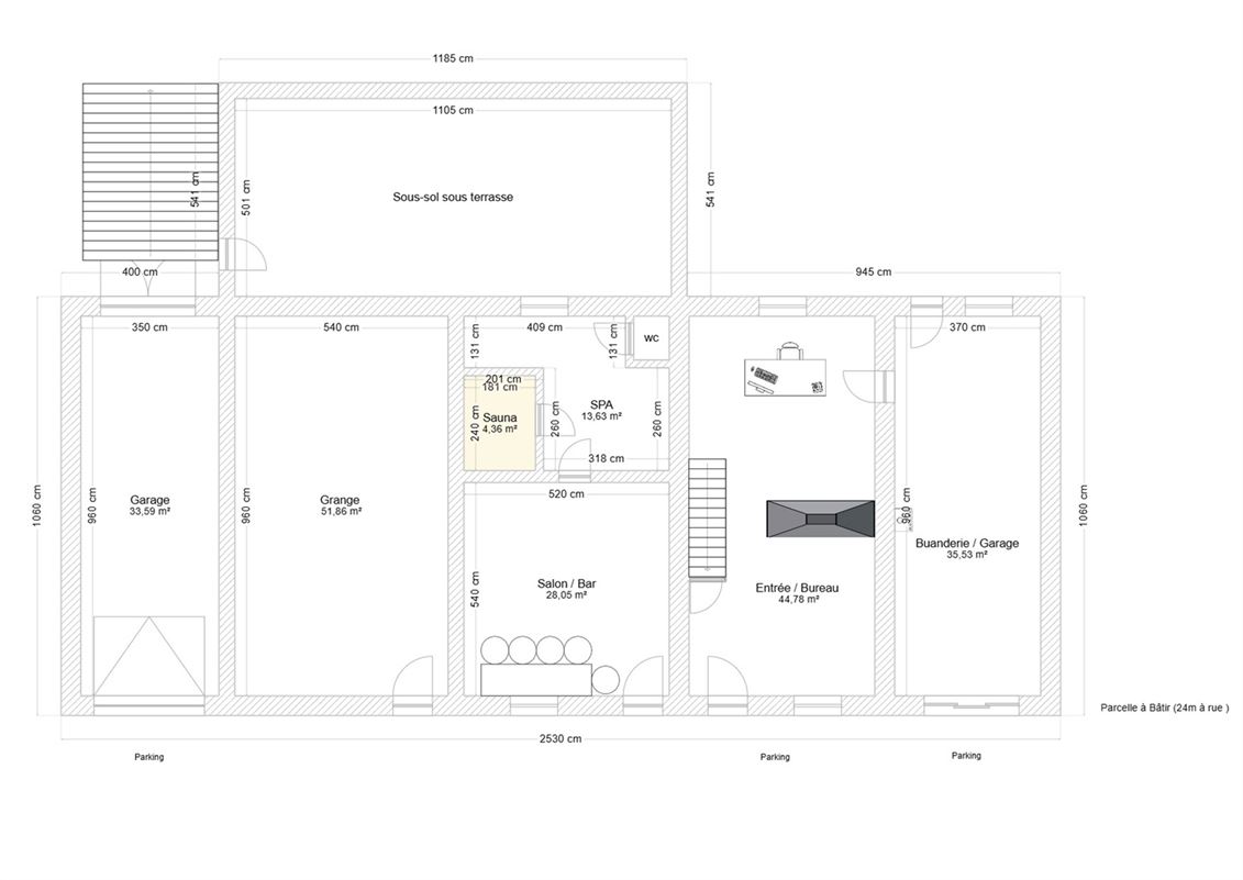
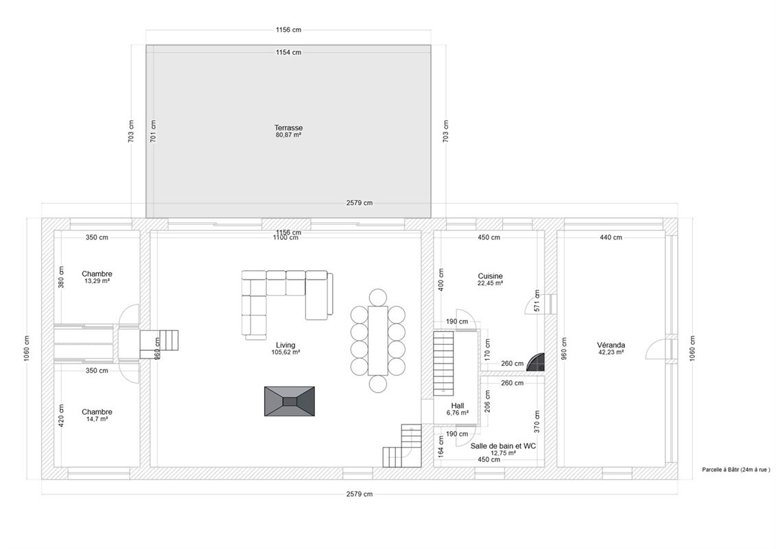
MCA Immobilier vous invite à découvrir cette magnifique propriété en pierre du pays, située à Tour/Heyd, dans la commune de Durbuy. Offrant un cadre de vie exceptionnel et une atmosphère chaleureuse, cette demeure unique propose une superficie habitable de plus de 400 m², le tout implanté sur un vaste terrain de 4281 m². Véritable havre de paix, cette maison conjugue charme authentique et confort. Au rez-de-chaussée, l'entrée authentique donne accès à un espace bureau, un coin détente avec bar, ainsi qu’un espace wellness équipé d’un sauna et d’un jacuzzi. Vous y trouverez également un garage, une buanderie et une grange pouvant accueillir une future piscine intérieure. Le premier étage dévoile la pièce maîtresse de la maison : un vaste séjour de 105 m² aux finitions soignées, agrémenté d’un feu ouvert. La cuisine rustique, avec ses poutres apparentes et son four à bois, ravira les amateurs de cuisine maison. Cet étage comprend également deux chambres, une salle de bain et une grande véranda lumineuse donnant accès au jardin. Au dernier étage, deux chambres supplémentaires et une mezzanine complètent les espaces de nuit. À l’extérieur, vous serez charmé par la très grande terrasse de 80 m², qui surplombe une superbe piscine naturelle. La propriété dispose également de plusieurs espaces de rangement, d’un coin barbecue et d’un grand jardin arboré, parfait pour des moments de détente en pleine nature. Une cave à vin de 20 m², située au sous-sol, vient enrichir les prestations de cette propriété d’exception. Alliant charme authentique et prestations modernes, cette demeure est une opportunité rare sur le marché. Pour toute information supplémentaire ou pour organiser une visite, n’hésitez pas à nous contacter par email à info@immomca.be ou par téléphone au 086/32.36.76.
Revenu cadastral
972 €
Chambre(s)
4
Salle(s) de bain
2
Superficie totale
497 m²
Superficie terrain
4 281 m²
Prix
945 000 €
En savoir plus
Adresse
Loheré 33
6940 Durbuy
Informations financières
Prix : 945 000 €
Revenu cadastral : 972 €
Droits d'enregistrement : 28 350 €
Honoraires notaire : 2 868 €
Honoraires notaire TVAC : 3 470 €
Total des frais : 31 820 €
Prix total : 976 820 €
Estimation des frais à titre informatif et sans engagement. Merci de prendre contact avec votre notaire afin d’obtenir le décompte précis.
Confort/Equipements
Meublé : Oui
Chauffage: C.C. au mazout
Orientation façade arrière: Sud
Type de toit: Non communiqué
Couverture du toit: Tuiles
Raccordement à l’eau: Oui
Cuisine: Cuisine équipée
Vitrage: Double
Chassis: bois
Confort extérieur : Etang, Barbecue, Châlet de jardin
Mentions légales
Droit de préemption possible : Non
Permis de bâtir obtenu : Oui
Citation pour infraction urbanistique : Pas encore demandé(e)
Autorisation de lotissement : Pas encore demandé(e)
Affectation : Pas encore demandée
Certificat énergétique
PEB No. : 20241004023255
Performances énergétiques : 255 kWh/m².an

Contactez-nous
Vous souhaitez recevoir des informations supplémentaires ? N’hésitez pas à prendre contact avec notre équipe*
Vous souhaitez recevoir des informations supplémentaires ? N’hésitez pas à prendre contact avec notre équipe*