App. profession libérale à Bomal
Demander une visite
Informations générales
Prix : 486 000 €
Chambre(s) : 2
Salle(s) de bain : 1
Adresse : Rue du Nofiot , Bomal
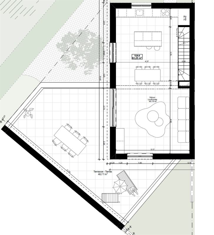
Superficie totale : 247 m²
Superficie terrain : 195 m²
Description du bien
MCA Immobilier vous présente le nouveau projet résidentiel éco quartier Plènèsse – phase I. Situé à Bomal-sur-Ourthe, ce nouveau projet résidentiel écoquartier propose la réalisation de 17 maisons unifamiliales ainsi que de 2 logements duplex. Chacun de ces duplex intègre, au rez-de-chaussée, un espace dédié à l’exercice d’une profession libérale, offrant ainsi des solutions adaptées aux besoins professionnels et résidentiels des futurs habitants. Ce quartier résidentiel durable bénéficie d’une accessibilité vers le Luxembourg et Liège. Les habitants profiteront également de la proximité immédiate d’écoles, de commerces, de transports en commun et d’infrastructures sportives, rendant la vie quotidienne particulièrement facile et agréable. Le quartier séduit par son environnement calme et verdoyant. Chaque logement dispose de son propre jardin privatif, d’une terrasse, ainsi que d’un emplacement de stationnement à proximité, garantissant ainsi un confort optimal à tous les résidents. L’écoquartier est doté d’un système énergétique, à la fois efficace et durable. Celui-ci comprend un réseau de chaleur géothermique, la production mutualisée d’électricité photovoltaïque et une infrastructure de recharge électrique intégrée. Ces équipements assurent le bien-être des habitants tout en maîtrisant les consommations énergétiques. Vous souhaitez recevoir des informations complémentaires sur ce projet (Plans, cahier des charges...). N'hésitez pas à contacter notre bureau via info@immomca.be ou au 086/32.36.76 !
Informations financières
Prix : 486 000 €
Droits d'enregistrement : 3 593 €
Honoraires notaire : 2 584 €
Honoraires notaire TVAC : 3 126 €
Total des frais : 102 743 €
Prix total : 588 743 €
Estimation des frais à titre informatif et sans engagement. Merci de prendre contact avec votre notaire afin d’obtenir le décompte précis.
Certificat énergétique
Performances énergétiques : 34 kWh/m².an

Mentions légales
Droit de préemption possible : Pas encore demandé(e)
Permis de bâtir obtenu : Pas encore demandé(e)
Citation pour infraction urbanistique : Pas encore demandé(e)
Autorisation de lotissement : Pas encore demandé(e)
Affectation : Pas encore demandée
Confort/Equipements
Chauffage: Chauffage par le sol
Type de toit: Non communiqué
Couverture du toit: Ardoises artificielles
Raccordement à l’eau: Non
Cuisine: Pas présent
Vitrage: Double
Chassis: pvc
Demander une visite
Informations générales
Prix : 486 000 €
Chambre(s) : 2
Salle(s) de bain : 1
Adresse : Rue du Nofiot , Bomal
Superficie totale : 247 m²
Superficie terrain : 195 m²
